ΔΙΑΜΕΡΙΣΜΑ 70 Τ.Μ. ΣΤΗ ΘΕΣΣΑΛΟΝΙΚΗ
θέση: Άνω Τούμπα, Θεσσαλονίκη
εμβαδόν:70 τ.μ.
έτος:2025
αρχιτεκτονική μελέτη : Liza Tiktapanidou-ARCHITECTURE

Το διαμέρισμα, ανακαινίσθηκε και επανασχεδιάσθηκε ώστε να χρησιμοποιηθεί σαν κατάλυμα βραχυχρόνιας μίσθωσης (bnb), στο οποίο θα διαμένει και ο ιδιοκτήτης, κάτοικος εξωτερικού,το χρονικό διάστημα κατά το οποίο θα βρίσκεται στη Θεσσαλονίκη.
Πριν ωστόσο ολοκληρωθούν οι εργασίες ανακαίνισης αποφασίσθηκε η πώλησή του και έτσι δεν προχωρήσαμε στον εξοπλισμό και την επίπλωση.

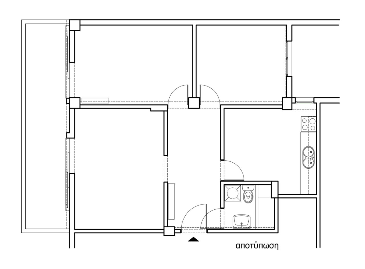
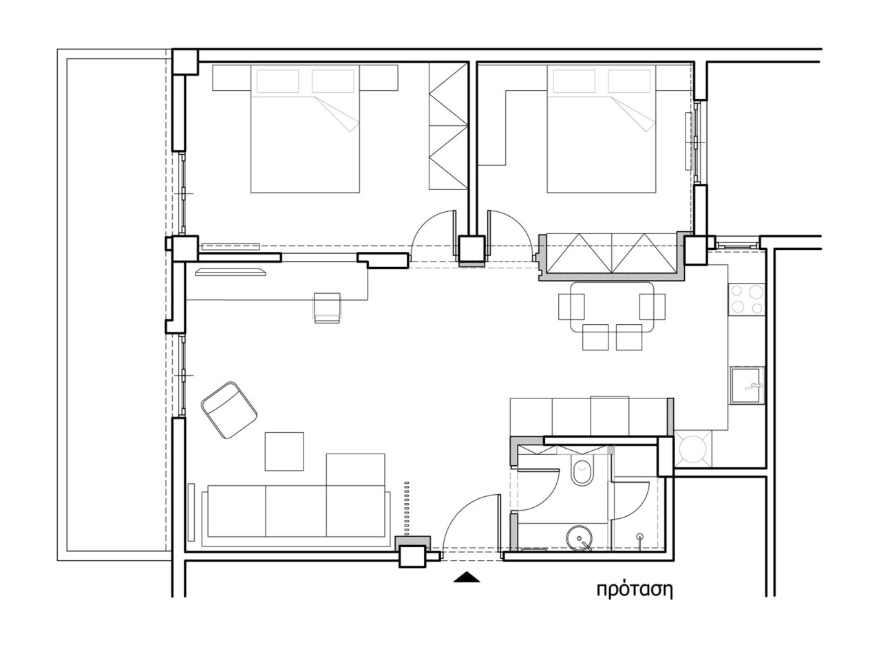
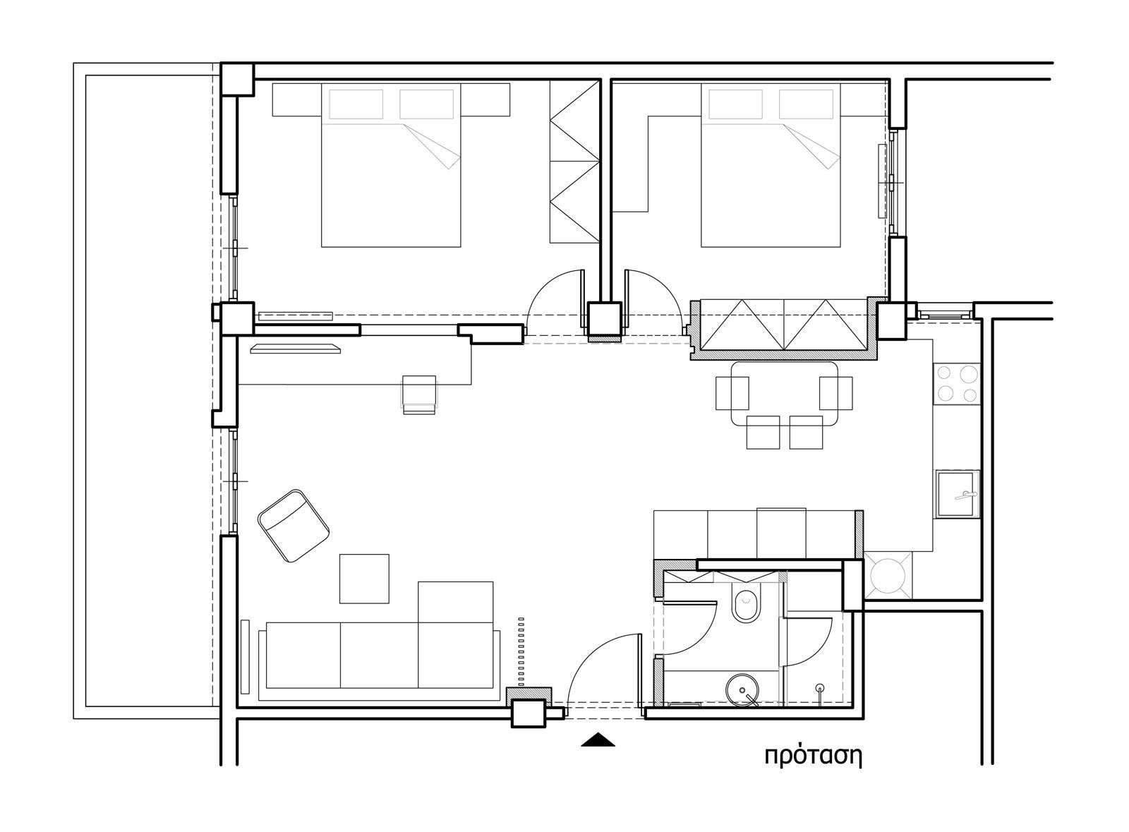
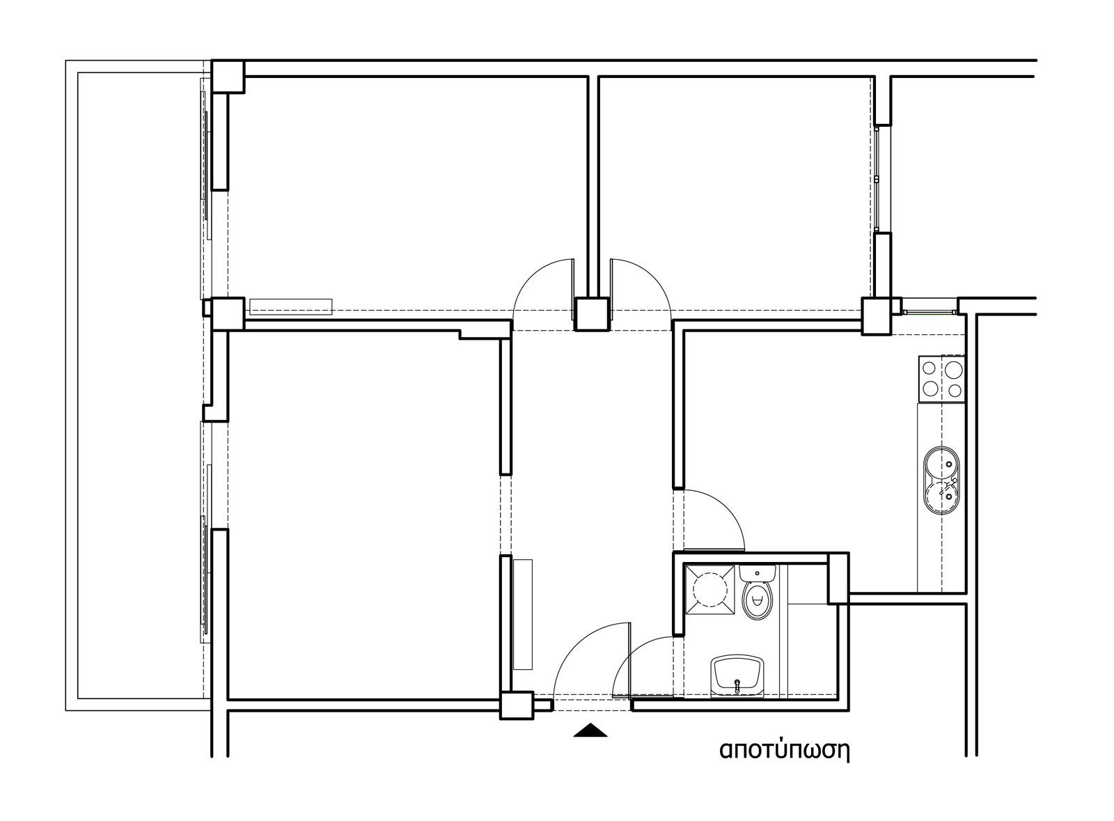
Το διαμέρισμα, είχε τη διαρρύθμιση των διαμερισμάτων της δεκαετίας του ‘70, της εποχής που κατασκευάσθηκε. Διέθετε ευρύ χωλ, μέσω του οποίου γινόταν η είσοδος στο σαλόνι, την κουζίνα και σε δύο δωμάτια. Επανασχεδιάσαμε το διαμέρισμα σαν open space, ενοποιώντας οπτικά και λειτουργικά το καθιστικό με την κουζίνα και μόνον οπτικά, τον ενιαίο χώρο ο οποίος προέκυψε, με το ένα από τα δύο δωμάτια, ανοίγοντας ένα εσωτερικό παράθυρο. Το “παράθυρο” αυτό- ένα σταθερό υαλοστάσιο με διπλό ηχομονωτικό κρύσταλλο- θα μπορούσε να κλείνει με κάποιο blind screen, ώστε το δωμάτιο αυτό, ανάλογα με τη χρήση του (παιδικό δωμάτιο,γραφείο,ξενώνας,επιπλέον υπνοδωμάτιο ) να μετατρέπεται σε ιδιωτικό χώρο.




Με τους αρχιτεκτονικούς αυτούς χειρισμούς μεγεθύναμε κατά πολύ τις οπτικές μεταξύ των επιμέρους χώρων του διαμερίσματος,αυξήσαμε τον εισερχόμενο φυσικό φωτισμό και προσφέραμε στο χώρο διαμπερότητες ,κατάλληλες για το φυσικό αερισμό του.




Με μικρές μετακινήσεις των εσωτερικών τοίχων υπνοδωματίου και μπάνιου,καταφέραμε οι χώροι αυτοί να γίνουν λειτουργικότεροι και πιο ευρύχωροι.



Για τον έλεγχο του budget ,αλλά κυρίως επειδή αγαπάμε τα φυσικά υλικά, διατηρήσαμε και συντηρήσαμε τα υφιστάμενα πατώματα: μπεζ μάρμαρο Τράνι Ιωαννίνων και ξύλινα παρκέτα τοποθετημένα σε σχέδιο τριπλό ψαροκόκκαλο.


Τα πατώματα αυτά αποτέλεσαν και τη βάση της υπόλοιπης υλικής και χρωματικής παλέτας:των πλακιδίων στο μπάνιο,των ερμαρίων σε κουζίνα και δωμάτια,των χρωμάτων στους τοίχους.


Με εκτεταμένες ψευδοροφές κρύψαμε κατά το δυνατόν τις σωληνώσεις της θέρμανσης και του κλιματισμού καθώς και τις καλωδιώσεις του αρχιτεκτονικού φωτισμού τον οποίο σχεδιάσαμε, με τη χρήση απλών χωνευτών φωτιστικών σωμάτων (led profils,spots),τοποθετημένων με τρόπο ώστε να πετύχουμε έναν φωτισμό τόσο λειτουργικό, όσο και σκηνογραφικό ,με πολλαπλά σενάρια φωτισμού.

